Sở hữu một mảnh đất rộng lớn và thuôn dài, Mr Hóa tìm tới Romo Cons với mong muốn được xây dựng nên một căn chung cư mini 6 tầng, vừa tối ưu giá trị sử dụng đất, vừa tạo ra một nguồn thu nhập ổn định.

Không chỉ dừng lại ở các khách sạn, Romo Cons còn là đối tác tin cậy của nhiều Chủ đầu tư trong việc phát triển các dự án chung cư mini, đặc biệt là những trường hợp có yêu cầu riêng biệt về địa thế đất. Một trong những minh chứng điển hình là dự án chung cư mini mà chúng tôi đã triển khai cho Chủ đầu tư là Mr Hóa tại Nghệ An.
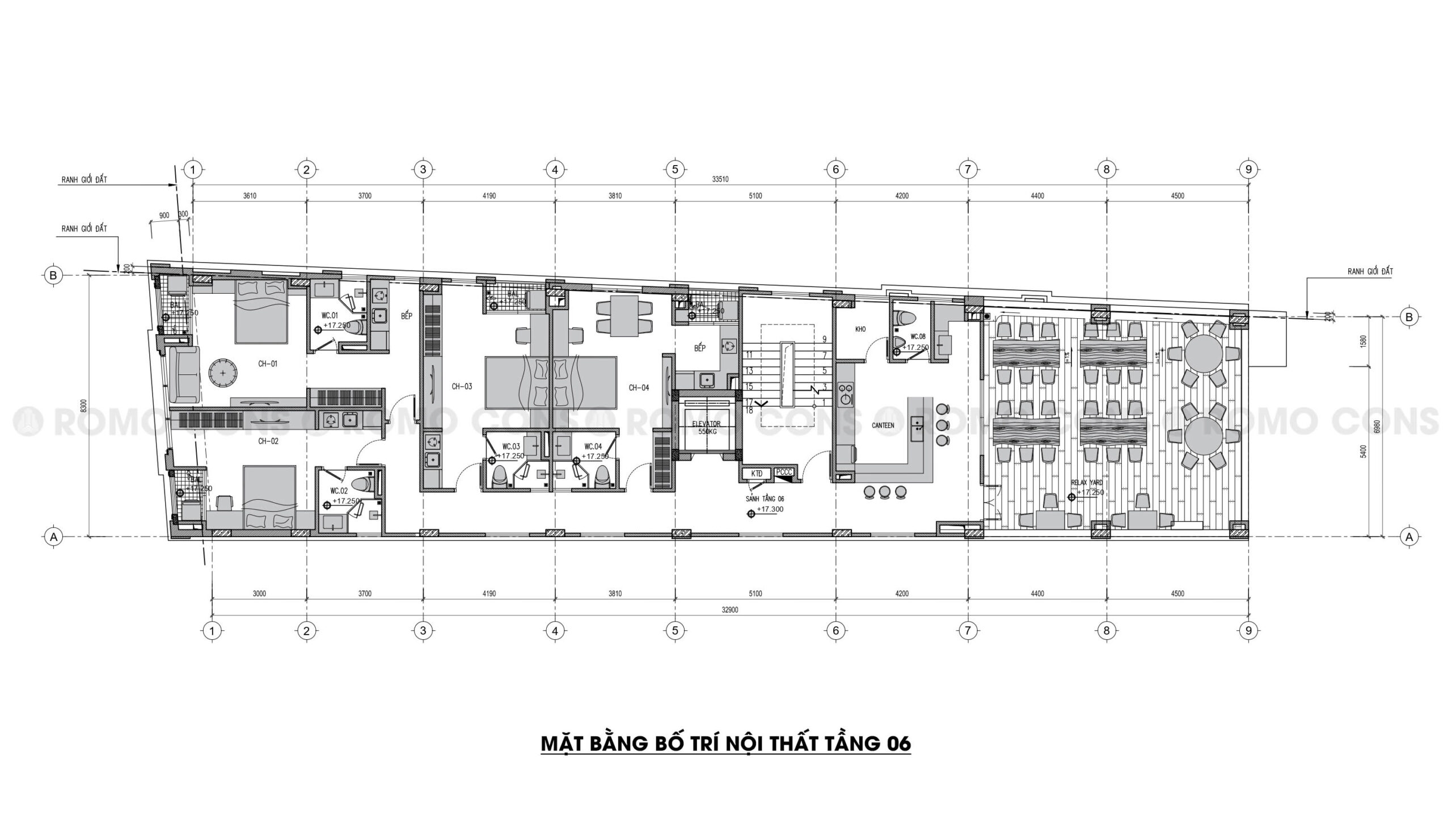
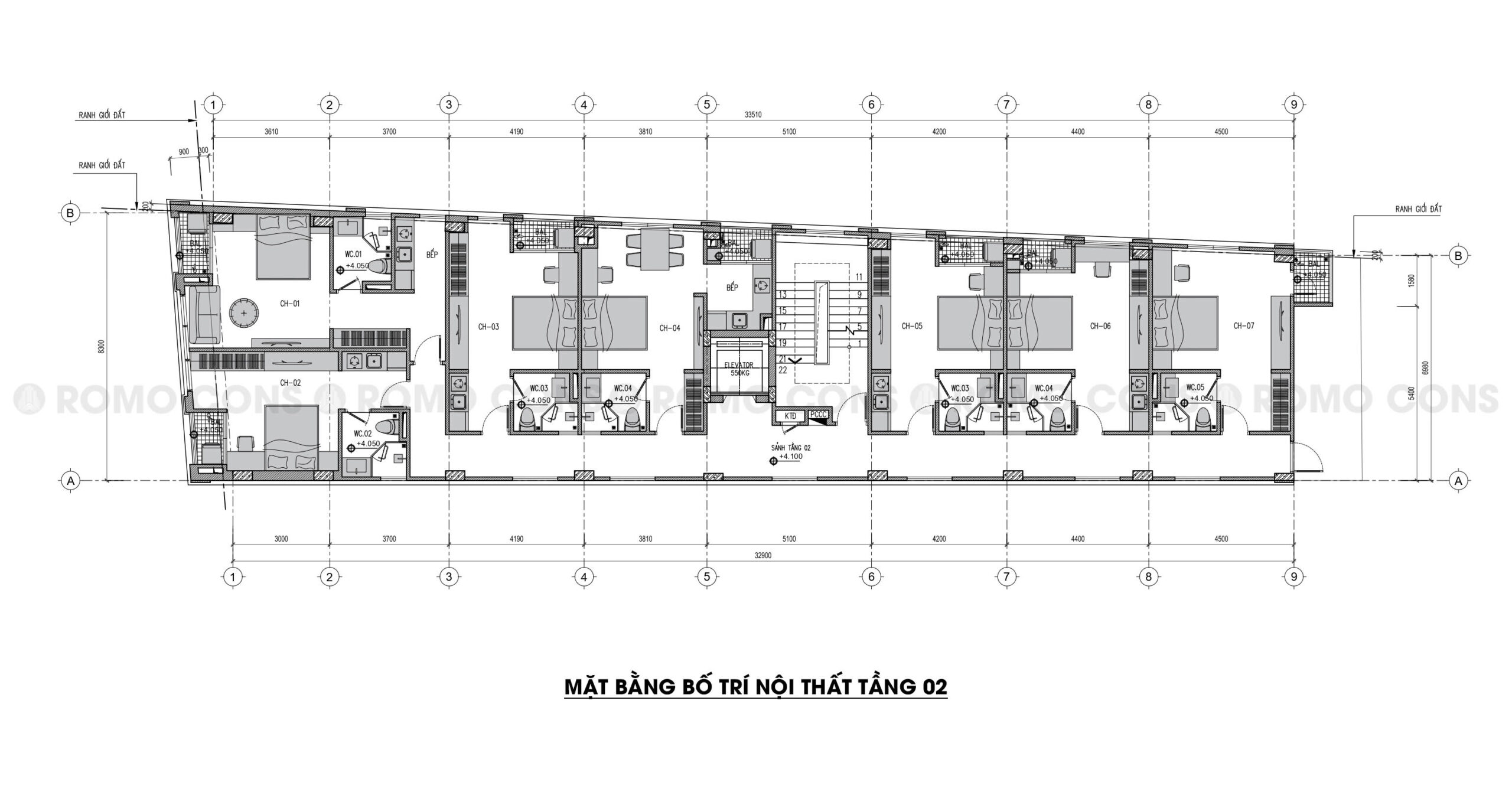
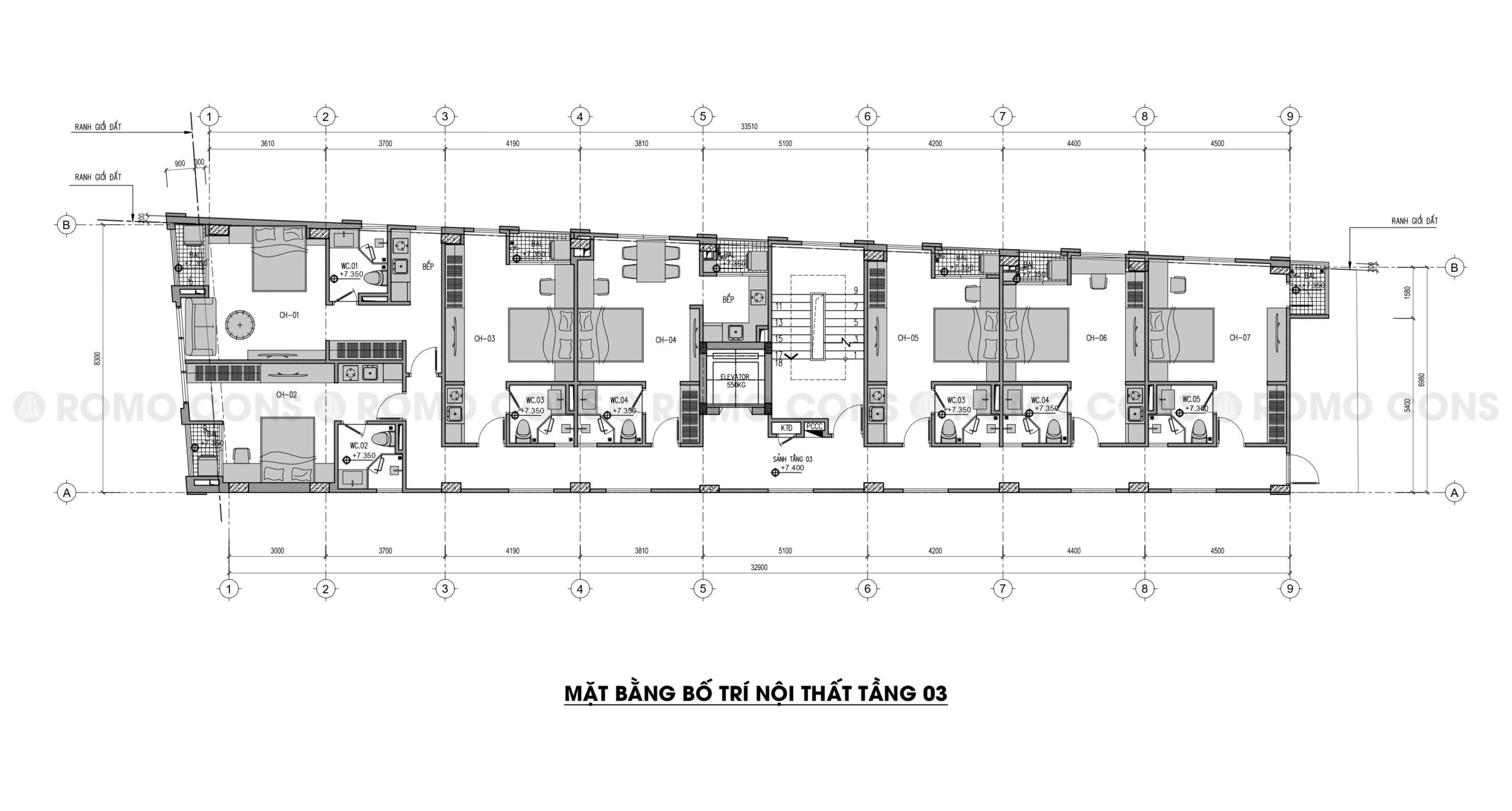
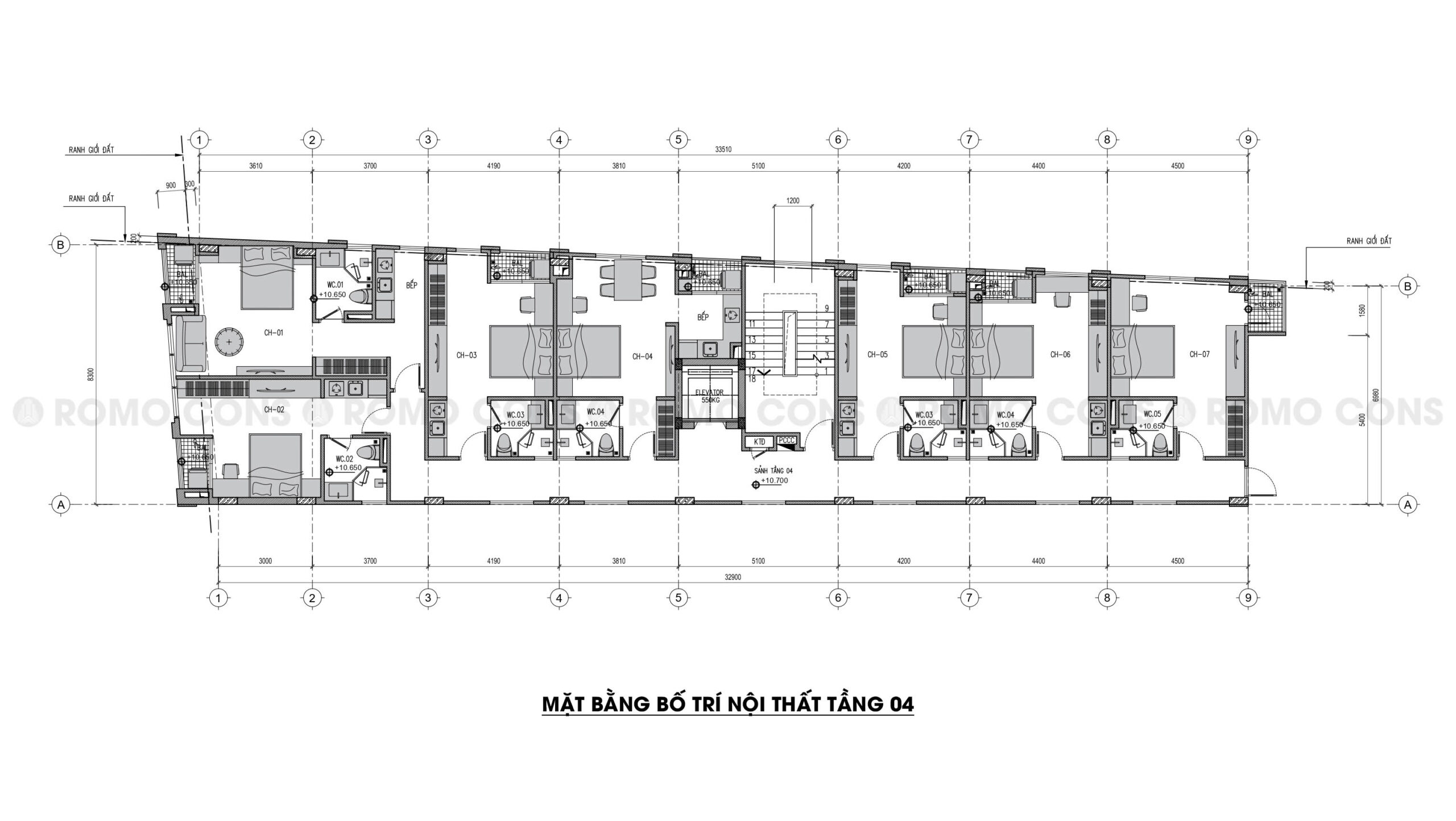
- Tối ưu giá trị “mảnh đất dài”: Chủ đầu tư tại Nghệ An sở hữu một mảnh đất có chiều dài đáng kể và chéo góc, do đó cần tối ưu hóa không gian sống và đảm bảo ánh sáng, thông gió cho từng căn hộ. Nhu cầu cốt lõi của Chủ đầu tư là xây dựng chung cư mini để tạo thêm nguồn thu nhập thụ động bền vững.
- Giải pháp thiết kế thông minh của Romo Cons:
- Đội ngũ kiến trúc sư của Romo Cons đã phát huy tối đa kinh nghiệm và sự sáng tạo để đưa ra giải pháp thiết kế kiến trúc thông minh, biến nhược điểm “mảnh đất dài” thành lợi thế. Chúng tôi tập trung vào việc bố trí các căn hộ hợp lý, sử dụng giếng trời hoặc các khoảng thông tầng nội bộ (nếu phù hợp với quy định địa phương) để tối đa hóa ánh sáng tự nhiên và luồng không khí, ngay cả với các căn hộ ở giữa.
- Mặt tiền công trình được thiết kế hiện đại, tinh giản, với các khối hình thẩm mỹ cao, phù hợp với cảnh quan đô thị và thu hút cư dân tương lai. Mỗi căn hộ đều có ban công hoặc cửa sổ lớn, mở ra không gian thoáng đãng.
- Kiến tạo nguồn thu nhập thụ động hiệu quả:
- Với phương án thiết kế tối ưu diện tích và công năng, mỗi căn hộ trong chung cư mini đều trở thành không gian sống lý tưởng, đầy đủ tiện nghi, thu hút đối tượng thuê là sinh viên, người đi làm hoặc gia đình nhỏ.
- Giải pháp thi công trọn gói của Romo Cons đảm bảo công trình hoàn thành đúng tiến độ và chất lượng cam kết, giúp Chủ đầu tư nhanh chóng đưa vào khai thác, tạo ra nguồn thu nhập thụ động ổn định và bền vững như mục tiêu ban đầu.



